
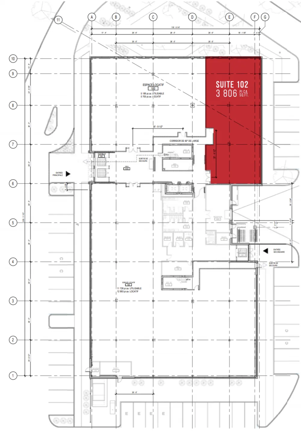
Situated between Highways 20 and 40, Suite 102 at 2400 Boulevard des Sources offers a bright and flexible office opportunity in a prominent multi-tenant building in Pointe-Claire. This ground floor corner suite provides ±3,806 sq.ft. in base building condition—ready for tenant fit-up and customization. Constructed in 2021, the building features modern design, expansive glazing, and direct street-front visibility along Sources Boulevard.
The site includes visitor and employee parking, loading dock access, and excellent proximity to both highways and public transit. Located just 11 minutes from the airport and 20 minutes to downtown, the building also benefits from proximity to a wide range of area amenities, including restaurants, banks, and grocery stores.




